3700 24th Ave, Sacramento, 95820
Toggle Navigation
Images
Floor Plans
Map
3700 24th Ave
Sacramento, 95820
Scroll to Content
Images
Slideshow
Photo Grid
Hide
Previous
Next
Show more
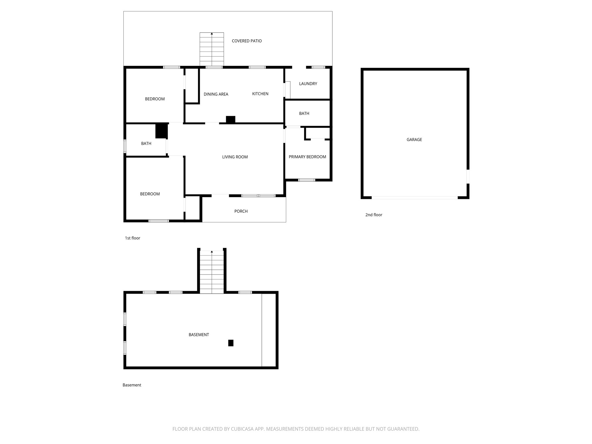
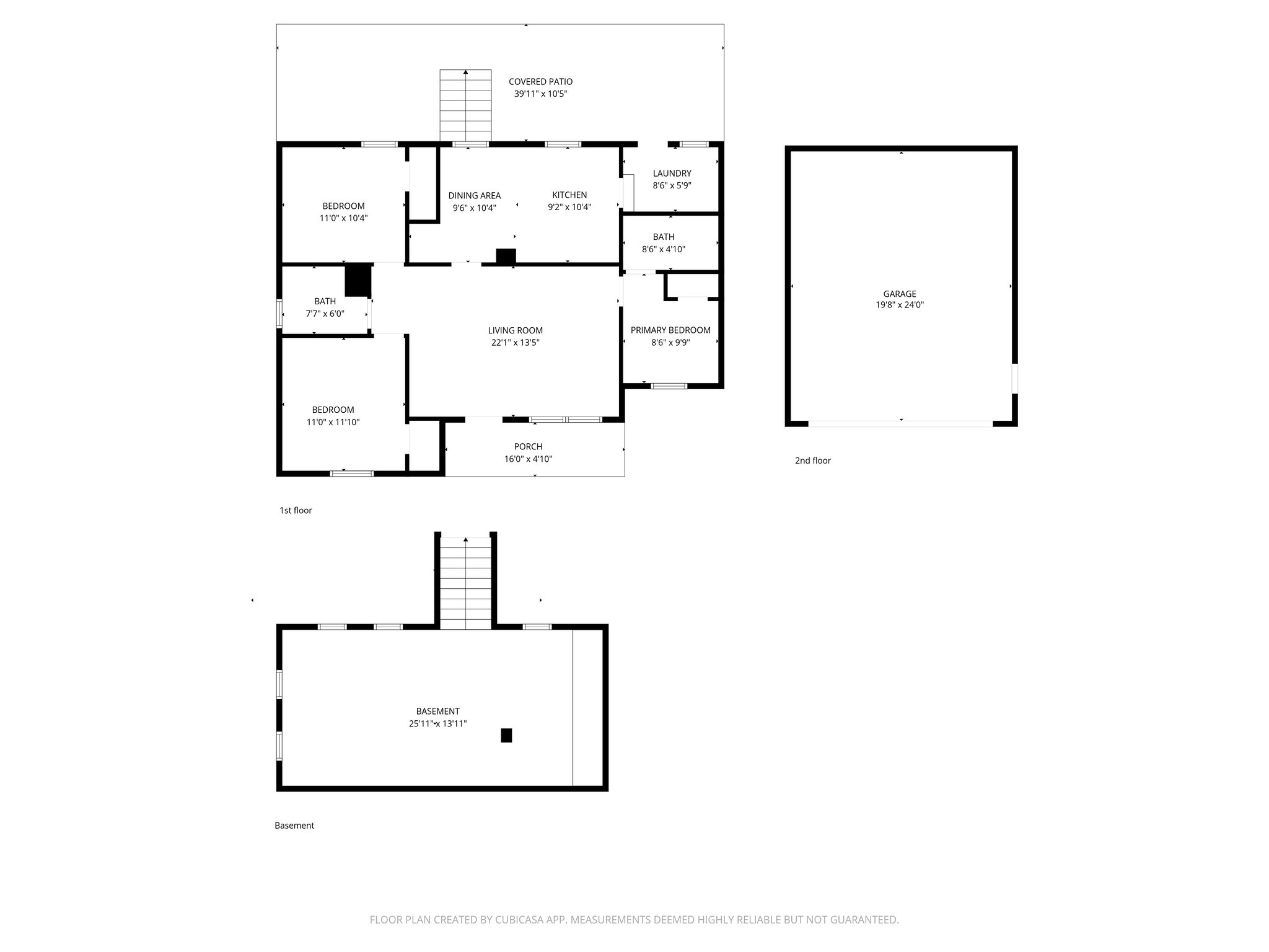
Floor Plans
Slideshow
Photo Grid
Hide
Previous
Next